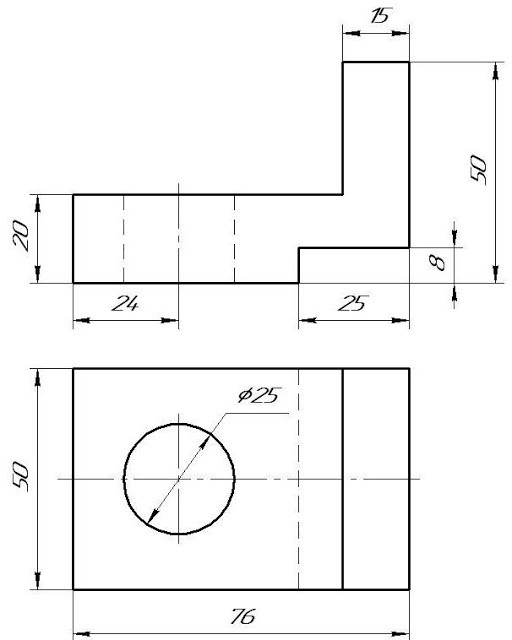
• Постройте третий вид детали по двум данным. Помогите пожалуйста, очень надо!!!!

    question img

Ответы 2

  • Огромное спасибо!
  • простите за плохое качество
    answer img
    • Автор:

      joseph433
    • 6 лет назад
    • 0
  • Добавить свой ответ

Еще вопросы

Войти через Google

или

Забыли пароль?

У меня нет аккаунта, я хочу Зарегистрироваться

How much to ban the user?
1 hour 1 day 100 years