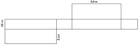
• На рисунке изображена развертка объемной фигуры. Вычислите ее объем в дм3, зная указанные на рисунке параметры.СРОЧНЯК! 15 БАЛЛОВ!!

    question img

Ответы 2

  • Спасибо огромное! Сможешь еще одно сделать?
  • На рисунке изображена развёртка прямоугольного параллелепипеда. Его объём равен произведению трёх его измерений, которые даны на чертеже.           V=15 см·2дм·0,4м=1,5 дм·2 дм·4 дм=12 дм³
    • Автор:

      savanah
    • 6 лет назад
    • 0
  • Добавить свой ответ

Войти через Google

или

Забыли пароль?

У меня нет аккаунта, я хочу Зарегистрироваться

How much to ban the user?
1 hour 1 day 100 years