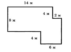
• 8. Пользуясь рисунком, вычислите площадь фигуры

    question img

Ответы 2

  • Есть два прямоугольника. У них общая часть. Площадь этой общей части - тоже прямоугольник.Итого: площадь первого прямоугольника: 14×8 = 1122-ого: 6×8 = 48Площадь общего куска: 4×4 = 16. Так как у нас две площади таких в фигуре сейчас, одну нужно убрать.Площадь фигуры: (112+48) - 16 = 144 (см2).Кажись, так. Ну, во всяком случае, я так думаю.
    • Автор:

      maia8zr5
    • 6 лет назад
    • 0
  • Площадь комбинированной фигуры можно находить двумя способами:1) Разбивая её на части, площади которых можем найти, с последующим сложением площадей полученных частей.2) Достраиванием фигуры до более целостной(известной) с последующим вычитанием отсутствующих пустот.Решение:1) Достроим мысленно нашу фигуру до прямоугольника. Представим себе, что раньше то был целый прямоугольник со сторонами, равными14 + 2 = 16 (м) и 8 + 4 = 12 (м).Площадь того прямоугольника была равнойS = ab = 16·12 = 192 (м²)2) Из прямоугольника вырезали два меньших прямоугольника ( один -сверху, другой - снизу)Измерения верхней вырезанной части равны 4 м и 2 м, тогда площадь равна S₁ = 4·2 = 8(м²)Измерения нижней вырезанной части равны (14 м + 2 м - 6 м) = 10 м и 4 м, площадь того прямоугольникаS₂ = 10·4 = 40 (м²)3) S фигуры = S - S₁ - S₂  = 192 - 8 - 40 = 144 (м²)Ответ: 144 м².
    • Автор:

      jasper29
    • 6 лет назад
    • 0
  • Добавить свой ответ

Войти через Google

или

Забыли пароль?

У меня нет аккаунта, я хочу Зарегистрироваться

How much to ban the user?
1 hour 1 day 100 years